<li id="aaaaa"></li>
  • <li id="aaaaa"></li><tt id="aaaaa"><table id="aaaaa"></table></tt>
    <li id="aaaaa"></li>
    <li id="aaaaa"><tt id="aaaaa"></tt></li>
  • <li id="aaaaa"><tt id="aaaaa"></tt></li><li id="aaaaa"><tt id="aaaaa"></tt></li>
  • <tt id="aaaaa"><table id="aaaaa"></table></tt>
    24小時電話
    18980800355

    當前位置 :主頁 / 工程案例 / 廠房凈化 / 正文

    江門客戶恒溫恒濕空調安裝設計圖

    華銳凈化 / 2021-03-21 08:43:39 / 閱讀
    江門客戶恒溫恒濕空調安裝設計圖江門客戶恒溫恒濕空調安裝設計圖
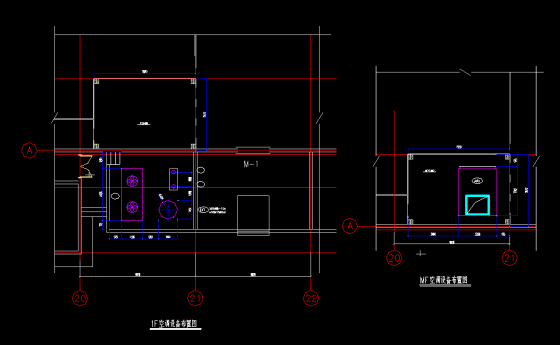
    最近一個月我們為江門這邊的客戶做的項目比較多,同時也有不少江門的朋友在問我們一些技術問題,協助他們解決一些技術難題。所以近期我們針對該情況在網站上盡可能發布一些針對江門客戶提出的相關問題的技術文檔。今天我們主要給大家分下一下江門客戶恒溫恒濕空調安裝設計圖,因為前面我們已經講述了一些關于恒溫恒濕空調安裝方面文字性的東西比較多,但是大家反饋沒有相關的圖片,圖紙或者說設計圖什么的,不是很形象,大家需要干貨。下面我們就給大家直接出干貨了:

    恒溫恒濕空調適用范圍


    恒溫恒濕空調設計圖紙

     

    恒溫恒濕空調平面布置圖

    恒溫恒濕空調通風布置

    恒溫恒濕空調通風管道示意圖

    看了以上恒溫恒濕空調安裝設計圖紙后,不僅僅是解決了江門區域朋友們的問題,同時其他地方的朋友看到了本文也是一樣有幫助的,我們做的恒溫恒濕工程都是需要用到恒溫恒濕空調的,比如精密車間,酒窖,檔案室,博物館和實驗室等等工程。這些工程,看起來名字完全不同,千奇百怪,但只要大家注意到一個核心的問題就很好理解了。只要這個工程需要控制兩個因素,第一恒溫,第二恒濕,那就必須用到恒溫恒濕空調,或者也叫做恒溫恒濕機。通過利用恒溫恒濕空調這個核心設備,在搭配其他系統工程一起來控制溫度和濕度,所以你們的項目是不是需要恒溫恒濕空調,大家知道了嗎?

    <li id="aaaaa"></li>
  • <li id="aaaaa"></li><tt id="aaaaa"><table id="aaaaa"></table></tt>
    <li id="aaaaa"></li>
    <li id="aaaaa"><tt id="aaaaa"></tt></li>
  • <li id="aaaaa"><tt id="aaaaa"></tt></li><li id="aaaaa"><tt id="aaaaa"></tt></li>
  • <tt id="aaaaa"><table id="aaaaa"></table></tt>
    欧美久久久精品 临武县| 罗田县| 武强县| 临泉县| 青州市| 香格里拉县| 洱源县| 台江县| 松阳县| 万盛区| 沙雅县| 山东| 湖口县| 西吉县| 淮南市| 达尔| 静海县| 古田县| 贞丰县| 门源| 霍城县| 临夏县| 睢宁县| 古交市| 栾川县| 乐昌市| 子洲县| 吉林市| 婺源县| 海安县| 琼海市| 贵州省| 麻江县| 金秀| 公主岭市| 罗山县| 枝江市| 定边县| SHOW| 林甸县| 白河县| http://444 http://444 http://444
    x
    手機
    電話
    微信
    QQ