隨著科學的發展和時代的變遷,我們的生活開始被各種電子產品和智能產品所包圍,如今產品已經開始向著智能化發展,但是鮮為人知的是,智能化的電子產品,其實都來自于智能化的生產車間,現在很多電子元件的生產企業都會聘請專業的恒溫恒濕公司,在車間中安裝恒溫恒濕空調系統。那么,恒溫恒濕空調系統的原理是什么呢?

我們常說的恒溫恒濕空調系統主要包括4個子系統,分別是恒溫恒濕空調壓縮制冷劑循環系統、恒溫恒濕空調空氣循環系統、空調電器自控系統;恒溫恒濕空調壓縮制冷劑循環系統.
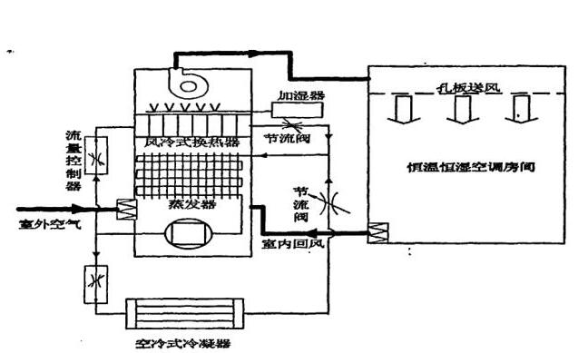
恒溫恒濕空調系統原理:
低溫低壓的制冷劑氣體被壓縮機吸入并壓縮成高溫高壓的制冷劑氣體(壓力和溫度增加),高溫高壓的制冷劑氣體通過冷凝器(風冷或水冷)放出熱量,冷凝成液體。通過截流裝置(膨脹閥或毛細管等)節流后變成低溫低壓制冷劑液體進入低壓的蒸發器,蒸發器中的液態制冷劑低壓蒸發吸收空氣的熱量(從而空氣被降溫及除濕),最終制冷劑與空之間形成一定的溫度差,液態制冷劑亦完全蒸發變為低溫低壓的氣體回到壓縮機壓縮,完成制冷劑循環過程。同理,也可進行熱循環,以此就會達到一個動態平衡,相繼就出現了恒溫恒濕的效果